LETOU¡¤(ÖйúÇø)ÓÐÏÞ¹«Ë¾¹ÙÍø

¼òÌå
¼òÌå ·±Ìå EN

LETOU¡¤(ÖйúÇø)ÓÐÏÞ¹«Ë¾¹ÙÍøÐÂÎÅ

GROUP NEWS

LETOU¡¤(ÖйúÇø)ÓÐÏÞ¹«Ë¾¹ÙÍøÊÊÀϲúÆ·Ñз¢ÁìÅÜÐÐÒµ ´òÔìÈý´úͬÌÃÓÅÃÀ¼Ò

Ðû²¼Ê±¼ä£º2018-09-05 ȪԴ£ºLETOU¡¤(ÖйúÇø)ÓÐÏÞ¹«Ë¾¹ÙÍø

¡°2100 Äê £¬£¬£¬£¬£¬Éú³Ý¿ìËÙÀÏÁ仯 ¡£¡£¡£¡£¡£¡£¡£ÀÏ»¯µÄÉñÃØ½ÒÏþÁË £¬£¬£¬£¬£¬ÈËÃǵÄÊÙÃüÑÓÉìÁË ¡£¡£¡£¡£¡£¡£¡£¡± ÃÀ¹ú²©Îïѧ¼Ò°®µÂ»ª?Íþ¶ûÑ·ÔÚ¡¶ÉúÃüµÄδÀ´¡·ÖеÄÔ¤ÑÔ £¬£¬£¬£¬£¬Õý±ÈÉèÏëµÄ¸ü¿ìµ½À´ ¡£¡£¡£¡£¡£¡£¡£

¹ú¼Òͳ¼Æ¾ÖÊý¾ÝÏÔʾ £¬£¬£¬£¬£¬×èÖ¹2017Äê £¬£¬£¬£¬£¬ÎÒ¹ú60Ëê¼°ÒÔÉÏÍíÄêÉú³Ý¹²2.41ÒÚÈË £¬£¬£¬£¬£¬Õ¼×ÜÉú³ÝµÄ17.3% ¡£¡£¡£¡£¡£¡£¡£µ½2020ÄêÎÒ¹ú65ËêÒÔÉϵÄÉú³Ý±ÈÀýÕ¹Íû½«µÖ´ï14.73% £¬£¬£¬£¬£¬ÏìÓ¦µÄÑøÀÏЧÀͱ£´æ×ÅÖØ´óµÄÉú³¤¿Õ¼ä ¡£¡£¡£¡£¡£¡£¡£

ÔÚÑøÀÏÐèÇóÒ»Á¬ÔöÌíµÄÅä¾°Ï £¬£¬£¬£¬£¬ÐÐÒµÒ²ÔÚһֱ˼Ë÷ÑøÀϲúÆ·Ö®µÀ ¡£¡£¡£¡£¡£¡£¡£

ʲôÑùµÄÉúÑIJÅÊÕùÏÈËÕæÕýÏëÒªµÄÉúÑÄ£¿£¿£¿£¿£¿

ʲôÑùµÄÉè¼Æ²Å»ªÈÃÀÏÈËÇáËÉ×ÔÈô £¬£¬£¬£¬£¬

´ÓÈÝÓ¦¶ÔËêÔ´øÀ´µÄÄ¥í£¿£¿£¿£¿£¿

ʲôÑùµÄÇéÐβŻªÈÃÀÏÈËÆ½°²ÆäÖÐ £¬£¬£¬£¬£¬¿µ½¡³©ÏíÍíÄꣿ£¿£¿£¿£¿

´ÓÒ»Ñùƽ³£ÉúÑĵ½Í»·¢Ó¦¼± £¬£¬£¬£¬£¬´ÓÉíÌå»úÖÆµ½ÐÄÀí¿¼Á¿ £¬£¬£¬£¬£¬LETOU¡¤(ÖйúÇø)ÓÐÏÞ¹«Ë¾¹ÙÍøÔÚÑøÀÏÊÊÀϵÄ·ÉÏÒ»Ö±ÉîÈë̽Ë÷ £¬£¬£¬£¬£¬ÂÊÏȸø³öÁËÒ»Ì×¾Ó¼ÒÑøÀÏÈ«·½Î»½â¾ö¼Æ»® ¡£¡£¡£¡£¡£¡£¡£

ÊÊÀÏÑз¢Ð§¹û½ÒÄ» ¡¤ Ò»¸öÈý´úͬÌÃÓÅÃÀµÄ¼Ò

ºã¾ÃÖÂÁ¦ÓÚ¡°×¨ÐÄÐÞ½¨ÓÅÃÀÉúÑÄ¡±µÄLETOU¡¤(ÖйúÇø)ÓÐÏÞ¹«Ë¾¹ÙÍø £¬£¬£¬£¬£¬´ËǰÓÚ4ÔÂ20ÈÕÐû²¼ÆäµÚÎå´ú²úÆ·¡°CIFI-5¡± £¬£¬£¬£¬£¬´òÔìÕæÕýÖª×ãС¡¢ÖС¢Àϲî±ðÄêËê¶ÎÐèÇóµÄÓÅÃÀÉçÇø £¬£¬£¬£¬£¬½¨ÉèÈ«ÁäÈ˾Ӿìעϵͳ £¬£¬£¬£¬£¬¶àά¶ÈÖª×ã¿Í»§¶ÔÉúÑĵÄÓÅÃÀÉñÍù ¡£¡£¡£¡£¡£¡£¡£

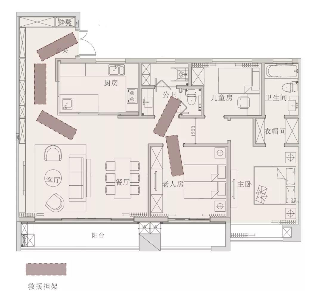
8Ô £¬£¬£¬£¬£¬LETOU¡¤(ÖйúÇø)ÓÐÏÞ¹«Ë¾¹ÙÍøÔÚÈ«Áä¾ì×¢µÄ»ù´¡ÉÏÔÙ½øÒ»²½ £¬£¬£¬£¬£¬´ÓÍíÄêÈ˵ÄÐÄÀíÓëÐÄÀíÐèÇóÈëÊÖ £¬£¬£¬£¬£¬Õë¶Ô¾Ó¼ÒÑøÀÏÁìÓòÍÆ³öÊÊÀÏסլ²úÆ· ¡£¡£¡£¡£¡£¡£¡£Îª½â¾öÍíÄêÈ˾ӼÒÑøÀϵÄÖÖÖÖÍ´µã £¬£¬£¬£¬£¬LETOU¡¤(ÖйúÇø)ÓÐÏÞ¹«Ë¾¹ÙÍø²úÆ·Ñз¢²¿´î½¨ÁËÔ¼125ƽ·½Ã×µÄÊÊÀÏÑо¿Ó÷¿ £¬£¬£¬£¬£¬Í¨¹ýÈý´óά¶È¡¢96¸öÑý¹Öϸ½Ú £¬£¬£¬£¬£¬È«·½Î»ÓÅ»¯Èý´úͬÌÃµÄÆÜÉíÇéÐÎ ¡£¡£¡£¡£¡£¡£¡£±ðµÄ £¬£¬£¬£¬£¬ÊÊÀÏÑо¿Ó÷¿Öл¹ÒýÈë¶à¸ö¹ú¼Ê»¯ÑøÀÏÉè¼ÆÂÄÀú¼°±ê×¼ £¬£¬£¬£¬£¬´òÔìÁìÏÈÇÒ³ä·Ö˳Ӧº£ÄÚÊг¡¡¢ÄÜѸËÙÂ䵨ÓÚµØÇø¹«Ë¾µÄ¾Ó¼ÒÐÍÊÊÀÏסլ²úÆ· £¬£¬£¬£¬£¬Á¦ÕùΪÍíÄêÈË´òÔ쿵½¡¡¢Çå¾²¡¢ÇáËɵď߯·ÖÊÆÜÉí¿Õ¼ä ¡£¡£¡£¡£¡£¡£¡£

LETOU¡¤(ÖйúÇø)ÓÐÏÞ¹«Ë¾¹ÙÍøÊÊÖÒʵÑéÓ÷¿Êµ¾°Í¼

ÊÊÀÏסլ²»µ«ÒªÇó¶ÔÏÖÓÐסլ¾ÙÐпռä¸ÄÁ¼ £¬£¬£¬£¬£¬¶ÔÎÝÄÚµÄÀο¿¼Ò¾ßÓëÉèÖÃÒ²Ìá³öÁ˼«´óµÄÌôÕ½ ¡£¡£¡£¡£¡£¡£¡£ÏÖÔÚ £¬£¬£¬£¬£¬ÊÐÃæÉϲ¢Ã»ÓÐÌ«¶àרΪÍíÄêÈËÉè¼ÆµÄÀο¿¼Ò¾ßºÍÉèÖà £¬£¬£¬£¬£¬Òò´Ë £¬£¬£¬£¬£¬³ýÁ˺âÓîʵÌåÐÞ½¨ÒÔÍâ £¬£¬£¬£¬£¬ÎªÁËÈ«·½ÃæÊµÏÖÀÏÈ˵ÄסլÐèÇó £¬£¬£¬£¬£¬LETOU¡¤(ÖйúÇø)ÓÐÏÞ¹«Ë¾¹ÙÍø²úÆ·Ñз¢²¿»¹Óë¼Ò¾ß¡¢×°±¸ÉèÊ©µÄÉú²ú³§¼ÒÁªÊÖ £¬£¬£¬£¬£¬ÅäºÏÉè¼Æ¡¢¿ª·¢³öΨһÎÞ¶þµÄÁ¢Òì²úÆ· ¡£¡£¡£¡£¡£¡£¡£

ÉîÌõÀíÍ´µãÆÊÎö ¡¤ ÖÜÈ«¹Ø×¢ÀÏÈËÉíÐÄ¿µ½¡

LETOU¡¤(ÖйúÇø)ÓÐÏÞ¹«Ë¾¹ÙÍøÔÚʼÖÕ×·Çó¡°ÒÔ¿Í»§ÎªÖÐÐÄ¡±µÄͬʱ £¬£¬£¬£¬£¬Í¨¹ý°ÙÓà´ÎµÄÈë»§·Ã̸ £¬£¬£¬£¬£¬ÉÏǧÕŵÄÎʾíÊÓ²ì £¬£¬£¬£¬£¬Õë¶Ô²î±ðµÄ¼Òͥ״̬¡¢ÀÏÈ˵ÄÉíÌå״̬ºÍ¾­¼ÃÄÜÁ¦ £¬£¬£¬£¬£¬´ÓÉúÑÄ×÷Ï¢¡¢¾Ó¼ÒÐèÇóµÈ·½ÃæÈëÊÖ £¬£¬£¬£¬£¬¾ÙÐÐÖÜÈ«¶øÉîÈëµÄÑо¿ £¬£¬£¬£¬£¬²¢Æ¾Ö¤×ۺϵÄÊý¾Ý·´Ïì £¬£¬£¬£¬£¬×îÖÕ×ܽá³öÊÊÀÏסլÐè½â¾öµÄÆß´óÍ´µã ¡£¡£¡£¡£¡£¡£¡£

ÐÄÀí·½ÃæËÄ´óÍ´µã

¢Ù ÊÓÁ¦¼õÍË¡¢Ñ£¹âÃô¸Ð£ºÍíÄêÈËÊӽDZäС £¬£¬£¬£¬£¬ÊÓÁ¦Ë¥ÍË £¬£¬£¬£¬£¬±ÈÕÕÃô¸Ð¶ÈÓÐËùϽµ £¬£¬£¬£¬£¬¶ÔÑ£¹âÊ®·ÖÃô¸Ð£»£»£»£»£»£»£»£»

¢Ú ¹Ç÷À±äÐΡ¢¼¡È⽩»¯£ºÍíÄêÈËÉí¸ßËõ¼õ¡¢¹ÇÖÊËÉÉ¢ £¬£¬£¬£¬£¬Ðж¯·ù¶È±äС¡¢ÉìÊÖ¹»¸ßÄÑÌâ £¬£¬£¬£¬£¬Ñü¼¡ÀÍËð»û±ä £¬£¬£¬£¬£¬²»¿É¾ÃÕ¾ÍäÑü £¬£¬£¬£¬£¬Ï¶׺óÕ¾Á¢¸üÄÑÌ⣻£»£»£»£»£»£»£»

¢Û ·´Ó¦»ºÂý¡¢¶àÓÃÂÖÒΣºÍíÄêÈËÓ¦¶Ô¸ß²î·´Ó¦²»ÊµÊ± £¬£¬£¬£¬£¬Ö«ÌåÎÞаÐÔ±ä²î¡¢Ðж¯Î´±ã £¬£¬£¬£¬£¬Ê¹ÓÃÂÖÒÎÆµÂʸߣ»£»£»£»£»£»£»£»

¢Ü Ò×·¢ÒâÍâ¡¢ÐèÒª¾ÈÔ®£ºÓÉÓÚÍíÄêÈËÒâÍⱬ·¢ÆµÂÊ¸ß £¬£¬£¬£¬£¬ÇÒ×Ô¾ÈÄÜÁ¦½ÏÈõ £¬£¬£¬£¬£¬¶Ô½ôÇÀ¾ÈÔ®ÐèÇó¸ß ¡£¡£¡£¡£¡£¡£¡£

ÐÄÀí·½ÃæÈý´óËßÇó

¢Ù ÅÎÔ¸±»×ðÖØ £¬£¬£¬£¬£¬ÓÐ×ðÑϵØÉúÑÄ£ºÍíÄêÈË×ÝÈ»ÃæÁÙÄêËêÔöÌí¡¢ÍȽÅδ±ã £¬£¬£¬£¬£¬Ò²Ï£ÍûÄܹ»ÎÞÕϰ­µØÔÚ¼ÒÖÐÔ˶¯ £¬£¬£¬£¬£¬×ÔÓɵØ×öÁ¦ËùÄܼ°µÄÊÂÇ飻£»£»£»£»£»£»£»

¢Ú ×·ÇóÇå¾²¸Ð £¬£¬£¬£¬£¬Ï²»¶Èý´úͬÌþÓ× ¡£¡£¡£¡£¡£¡£¡£ºÏ£Íû¿ÉÒÔͬ¼ÒÈËÆÜÉí £¬£¬£¬£¬£¬ÓйéÊô¸Ð £¬£¬£¬£¬£¬ÇÒÏ£ÍûÇéÐÎÓгä·ÖµÄÇå¾²°ü¹Ü£»£»£»£»£»£»£»£»

¢Û ×·Çó¼òÆÓÎ޼縺 £¬£¬£¬£¬£¬ÇãÔþÊýÂë²Ù×÷£º¹ØÓÚÏȽøµÄÊýÂë¡¢ÖÇÄÜ»¯²Ù×÷½ÏÇãÔþ £¬£¬£¬£¬£¬¹ýÓÚÖØ´óµÄ²Ù×÷°ì·¨»áÁîÀÏÈ˸ÐÓ¦¼ç¸º ¡£¡£¡£¡£¡£¡£¡£

Èý´óά¶ÈÈëÊÖ ¡¤ ¾Ó¼ÒÑøÀÏÈ«·½Î»½â¾ö¼Æ»®

Î§ÈÆÍíÄêÈËÆÜÉíµÄÐèÇó £¬£¬£¬£¬£¬ÔÚÊÊÀÏÑо¿Ó÷¿µÄϸ½ÚÉèÖÃÖÐ £¬£¬£¬£¬£¬LETOU¡¤(ÖйúÇø)ÓÐÏÞ¹«Ë¾¹ÙÍø×ÃÇé¼ÓÈëÁËÐí¶àϸÄ廯µÄÉè¼Æ £¬£¬£¬£¬£¬ÒÔ²úÆ·µÄÇå¾²ÐÔ¡¢±ã½ÝÐÔ¡¢¿µ½¡ÐÔΪÈý´óÆðµã £¬£¬£¬£¬£¬ÔÚÒµÄÚÊÊÀϲúÆ·µÄÑо¿ÖÐ̽Ѱ³öÐÂ¸ß¶È ¡£¡£¡£¡£¡£¡£¡£

Çå¾²µÚÒ» £¬£¬£¬£¬£¬ÈÃ×ÓÅ®¶¨ÐÄ

34ÏîÇå¾²Éè¼Æ £¬£¬£¬£¬£¬Í»·¢ÊÂÎñÈ«¿¼Á¿

ºâÓîÖйØÓÚÇå¾²ÐԵĿ¼Á¿ £¬£¬£¬£¬£¬¿ÉνÏ꾡Èë΢ £¬£¬£¬£¬£¬Õë¶ÔÍíÄêÈËÒâÍⱬ·¢ÆµÂʽϸߵÄÕ÷Ïó £¬£¬£¬£¬£¬ºâÓîÖ÷ҪͨµÀÉè¼Æ¾ùÇкϵ£¼ÜËùÐè±ê×¼ £¬£¬£¬£¬£¬Ò½ÎñÖ°Ô±ÄÜÀû±ãµØ½øÈë¿ÍÌü¡¢³ø·¿¡¢ÎÔÊÒ¼°ÎÀÉú¼ä¾ÙÐоÈÔ® £¬£¬£¬£¬£¬×èÖ¹°áÔË ¡£¡£¡£¡£¡£¡£¡£

˼Á¿µ½ÂÖÒÎʹÓÃÆµÂÊ¸ß £¬£¬£¬£¬£¬ÒÔÊÇ´ÓÈë»§ÃÅ¡¢·¿Ãųߴ硢ÎÝÄÚÖ÷ÒªµÄÔ˶¯¿Õ¼ä¡¢¹ñ×Ó¿ªºÏ¡¢²Ù×÷¿Õ¼äµÈ¶à¸öά¶È°ü¹ÜÂÖÒεĻØ×ª°ë¾¶ÓëÔ˶¯¿Õ¼ä £¬£¬£¬£¬£¬Ö÷ÒªµÄÔ˶¯¿Õ¼ä°ü¹ÜÂÖÒÎ90¡ã»ò360¡ãÐýת°ë¾¶ ¡£¡£¡£¡£¡£¡£¡£

ÀÏÈËÈôÊÇÔÚ¼ÒÖÐÒ»µ©Óöµ½Í»·¢ÇéÐÎÇëÇóºô¾È £¬£¬£¬£¬£¬ÑÓÉìÖÁµØÃæµÄÉþË÷ÁîÀÏÈË×ÝÈ»µ¹ÔÚµØÉ϶¼ÄÜÀ­µ½ £¬£¬£¬£¬£¬¾¯±¨À­Ïìºó £¬£¬£¬£¬£¬¼ÒÈËÊÖʱ»ú˲¼äÊÕµ½±¨¾¯ÌáÐÑ £¬£¬£¬£¬£¬¼ÒÈË¿Éͨ¹ýÊÖ»úÒ»´ÎÐÔÊÚȨ¸øÎïÒµÈë»§ÃÜÂë £¬£¬£¬£¬£¬×ÝÈ»×ÓÅ®²»ÔÚ¼Ò £¬£¬£¬£¬£¬Ò²¿É֪ͨÎïÒµÊÂÇéÖ°Ô±µÚһʱ¼ä½øÃÅÇÀ¾ÈÀÏÈË £¬£¬£¬£¬£¬ÇÒʹʱ¬·¢ËùÔڵصķ¿¼äÃſڻá×Ô¶¯¾ÙÐеƹâÉÁׯ £¬£¬£¬£¬£¬Í¨Öª¾ÈÔ®Ö°Ô± ¡£¡£¡£¡£¡£¡£¡£

Í»·¢×´Ì¬À­Ï쾯±¨ £¬£¬£¬£¬£¬µÆ¹âÉÁ×ÆÍ¨Öª¾ÈÔ®Ö°Ô±

ÀÏÈËÀ­Ï쾯±¨ºó £¬£¬£¬£¬£¬¼ÒÈËÊÖ»úÁ¬Ã¦ÊÕµ½±¨¾¯ÌáÐÑ

ÇáËÉÌåÑé £¬£¬£¬£¬£¬ÈÃÀÏÈËÊæÐÄ

48¸ö±ã½Ýϸ½Ú £¬£¬£¬£¬£¬µãµÎ¹Ø°®ÀÏÈËÉíÐÄ

ÔÚÓû§ÌåÑé·½Ãæ £¬£¬£¬£¬£¬LETOU¡¤(ÖйúÇø)ÓÐÏÞ¹«Ë¾¹ÙÍø¡°Á¿ÎÄÌåÒ¡±µÄÔöÉèÁËÐí¶àÈËÐÔ»¯Ï¸½Ú ¡£¡£¡£¡£¡£¡£¡£Í¨¹ý¶ÔÈë»§ÃÅ¡¢³ø·¿¡¢ÎÀÉú¼ä¡¢Ñǫ̂µÈ¿Õ¼ä¾ÙÐÐÄÚÍâÎ޸߲îÉè¼Æ £¬£¬£¬£¬£¬À´Ó¦¶ÔÍíÄêÈ˶Ը߲ӦµÄ²»ÊµÊ± £¬£¬£¬£¬£¬Àû±ãÂÖÒÎÀÏÈË×ÔÓÉÊÕÖ§ £¬£¬£¬£¬£¬ïÔÌ­ÀÏÈËˤõÓΣº¦ ¡£¡£¡£¡£¡£¡£¡£

 

˼Á¿µ½ÀÏÈËÉí¸ßËõ¼õ¡¢³Ë×øÂÖÒΡ¢»ò¼¡È⽩ӲÉìÊÖÄÑÌâµÈÇéÐÎ £¬£¬£¬£¬£¬È«ÎÝËùÓÐÌ¨Ãæ¡¢µÆ¹â¿ª¹Ø¡¢ÃŰÑÊֵȾù½ÏͨË׺âÓîÓÐÊʵ±½µµÍ ¡£¡£¡£¡£¡£¡£¡£

ÓÉÓÚÀÏÈËÑü¼¡ÀÍËð»û±ä £¬£¬£¬£¬£¬²»¿É¾ÃÕ¾ÍäÑü £¬£¬£¬£¬£¬ºâÓîͨ¹ýÉè¼ÆÔöÇ¿¿Õ¼äµÄÁ鶯ÐԺ͹¦Ð§µÄÊÊÓÃÐÔ £¬£¬£¬£¬£¬Ê¹ÀÏÈËÄܹ»×ø×ÅÇáËÉÓ¦¶ÔÉúÑÄ ¡£¡£¡£¡£¡£¡£¡£ÀýÈç³ø·¿ºÍÎÀÉú¼ä²Ù×÷̨µÄϹñ×ÅʵΪ¿ÉÀ­³öµÄ×ùÒÎ £¬£¬£¬£¬£¬ÔÚ±£´æÊÕÄÉ×÷ÓõÄͬʱ £¬£¬£¬£¬£¬ÊµÏÖÀÏÈË¡°×ø×ųø·¿ÊÂÇ顱¡¢¡°×ø×ÅÏ´Êþ¡±£»£»£»£»£»£»£»£»±ðµÄ £¬£¬£¬£¬£¬¡°×ø×Å»»Ð¬¡±¡¢¡°×ø×ÅÁÜÔ¡¡±µÈÉè¼Æ¿É×îºéÁ÷ƽïÔÌ­ÀÏÈËÑü²¿¼ç¸º £¬£¬£¬£¬£¬Á¬ÂíͰ³åË®µÄ°´Å¥Î»Öö¼ÊÇΪÁËïÔÌ­ÀÏÈËÍäÑü´ÎÊý¶øÉèÖà ¡£¡£¡£¡£¡£¡£¡£¶øÔÚÐþ¹Ø»»Ð¬´¦¡¢ÎÀÉú¼äÉèÓмæ¾ß¹¦Ð§ÐԵķöÊÖ £¬£¬£¬£¬£¬Àû±ãÀÏÈËÕÆÎÕÆ½ºâ £¬£¬£¬£¬£¬ÆðÉíÕ¾Á¢ ¡£¡£¡£¡£¡£¡£¡£

·­¿ªÔî¾ß £¬£¬£¬£¬£¬ÓÍÑÌʱ»ú×Ô¶¯·­¿ª£»£»£»£»£»£»£»£»Ï´ÒÂÍê³É £¬£¬£¬£¬£¬ÁÀÒ¼ܻá×Ô¶¯½µÏ ¡£¡£¡£¡£¡£¡£¡£¼ò»¯µÄ³ø·¿ÓëÏ´Òµİ취 £¬£¬£¬£¬£¬´øÀ´¸üÇáËɱã½ÝµÄÌåÑé ¡£¡£¡£¡£¡£¡£¡£¡°µÆËæÈ˶¯¡± £¬£¬£¬£¬£¬ÃâÈ¥¿ª¹Ø°ÃÄÕ ¡£¡£¡£¡£¡£¡£¡£±ðµÄ £¬£¬£¬£¬£¬·¿¼äÄڵĿյ÷¡¢µçÊÓ¡¢µÆ¾ß¡¢´°Á±µÈ¶¼¿Éͨ¹ýÓïÒô¿ØÖÆÀ´²Ù×÷ £¬£¬£¬£¬£¬×îºéÁ÷ƽµÄ¼õÇáÀÏÈ˲»ÉÆÓÚµÄÊý×Ö»¯¡¢ÖÇÄÜ»¯µÄ²Ù×÷ ¡£¡£¡£¡£¡£¡£¡£

¿µ½¡¿ìÀÖ £¬£¬£¬£¬£¬ÈÃÈ«¼Ò¿ªÐÄ

13Ï½¡ÐÔÉè¼Æ £¬£¬£¬£¬£¬¹Ø°®ÀÏÈ˸ü¹Ø°®È«¼Ò

ÍíÄêÈ˵Ŀµ½¡¼´ÊÇÈ«¼ÒµÄÐÒ¸£ £¬£¬£¬£¬£¬ÒÔÊÇLETOU¡¤(ÖйúÇø)ÓÐÏÞ¹«Ë¾¹ÙÍøÖÜÈ«µÄ´Ó¹âÏß¡¢¿ÕÆø¡¢Î¶ȡ¢Êª¶ÈµÈ·½ÃæÈëÊÖ £¬£¬£¬£¬£¬ÊµÏÖ×Ô¶¯¿ØÖÆ¿ÕÆøÖÊÁ¿¡¢·¿¼äÎÂʪ¶ÈµÈ £¬£¬£¬£¬£¬°ü¹ÜÊÒÄÚ¿ÕÆøÇéÐÎÆ·ÖÊ £¬£¬£¬£¬£¬ÇÒ¾ù¿ÉÓ°ÏóÀÏÈ˵Äϲ»¶ºÍϰ¹ß×Ô¶¯¾ÙÐе÷Àí£»£»£»£»£»£»£»£»Í¨¹ý˯Ãß¼à²â´ø¼à²âÀÏÈË˯ÃßÖÊÁ¿ £¬£¬£¬£¬£¬²¢¿ÉÏÔʾÓÚÏ´ÊÖ¼äÖÇÄÜħ¾µ £¬£¬£¬£¬£¬Àû±ã¼ÒÈËÏ꾡ÖÜÃܵÄÕÕ¹ËÍíÄêÈË¿µ½¡ ¡£¡£¡£¡£¡£¡£¡£

ÊÊÖÒʵÑéÓ÷¿»¹ÌØÊâÔ¼ÇëÇ廪´óѧÐÞ½¨Ñ§Ôº¸±½ÌÊÚ¡¢ÖйúÕÕÃ÷ѧ»áÊÒÄÚרҵÕÕÃ÷ίԱ»áÃØÊ鳤ÕÅê¿ÏÈÉú £¬£¬£¬£¬£¬ÎªLETOU¡¤(ÖйúÇø)ÓÐÏÞ¹«Ë¾¹ÙÍøÊÊÀϲúƷרÞÙÐÐÁËÕÕÃ÷Éè¼Æ £¬£¬£¬£¬£¬²»µ«ÔÚÕÕ¶ÈÉÏ˼Á¿ÍíÄêÈËºÍÆäËû¼ÒÍ¥³ÉÔ±µÄ²î±ðÐèÇó £¬£¬£¬£¬£¬Í¬Ê±Í¨Ï꾡Ä廯µÄÉè¼Æ×èֹѣ¹â £¬£¬£¬£¬£¬²¢Æ¾Ö¤ÈËÌåÐÔÄܺÍÃÀ¹úWELL±ê×¼¾ÙÐÐÁ˽ÚÂÉÕÕÃ÷µÄʵÑé ¡£¡£¡£¡£¡£¡£¡£Õë¶ÔÀÏÈËºÍÆäËû¼ÒÍ¥³ÉÔ±²î±ðµÄÊÓ¾õÌØµã £¬£¬£¬£¬£¬×¨ÃÅÉè¼ÆÁ˲î±ðµÄÆðÒ¹ÕÕÃ÷ģʽ £¬£¬£¬£¬£¬ºÇ»¤È«¼Ò¿µ½¡ ¡£¡£¡£¡£¡£¡£¡£ 

ÔÚLETOU¡¤(ÖйúÇø)ÓÐÏÞ¹«Ë¾¹ÙÍøÊÊÀϲúÆ·µÄÑз¢Àú³ÌÖÐ £¬£¬£¬£¬£¬Ò²»ñµÃÁËÊÊÀÏסլÁìÓòµÄר¼Ò¡¢Ç廪´óѧÖÜÑàçë½ÌÊÚµÄÖ¸µ¼ ¡£¡£¡£¡£¡£¡£¡£ÖܽÌÊÚÒÔΪLETOU¡¤(ÖйúÇø)ÓÐÏÞ¹«Ë¾¹ÙÍøÔÚ¾Ó¼ÒÑøÀÏ·½ÃæËù×öµÄ̽Ë÷ºÜÊÇÖµµÃÒ»¶¨ £¬£¬£¬£¬£¬¡°LETOU¡¤(ÖйúÇø)ÓÐÏÞ¹«Ë¾¹ÙÍø¹ØÓÚÍíÄêÈËÈËÌ幤ѧµÄÑо¿ºÜÊÇÉîÈë £¬£¬£¬£¬£¬ÎÊÌâµÄѰÕÒºÜÊÇÖÜÈ« £¬£¬£¬£¬£¬´ÓÇå¾²½Ç¶Èµ½ÉúÑÄ·½ÃæµÄÿһ¸öϸ½Ú¶¼ÏÂ×ãÁËʱ¹â £¬£¬£¬£¬£¬³ä·Öչʾ³ö½â¾ö¾Ó¼ÒÑøÀÏÎÊÌâµÄ¿ÌÒâºÍÆð¾¢ ¡£¡£¡£¡£¡£¡£¡£¡±

ÏÖÔÚ £¬£¬£¬£¬£¬LETOU¡¤(ÖйúÇø)ÓÐÏÞ¹«Ë¾¹ÙÍøÊÊÀÏסլ²úÆ·ÒѾ­Íê³ÉÁ˵ÚÒ»½×¶ÎµÄÑз¢ £¬£¬£¬£¬£¬Î´À´½«ÔÚ¸£½¨¡¢Î人¡¢ÇൺµÈµØµÄÏîÄ¿Â½ÐøÂ䵨 ¡£¡£¡£¡£¡£¡£¡£¶øÊÊÀÏ·½ÃæµÄ²úÆ·Ñо¿ £¬£¬£¬£¬£¬LETOU¡¤(ÖйúÇø)ÓÐÏÞ¹«Ë¾¹ÙÍøÈÔ½«Ò»Á¬Ò»Ö±µÄµü´úÉý¼¶ £¬£¬£¬£¬£¬Á¦ÕùΪÖйúÀÏÈË´òÔìÒ»¸öÓÐζȡ¢Óоì×¢ £¬£¬£¬£¬£¬¸ü¾ßÈËÐÔ»¯µÄ¾Ó¼ÒÇéÐÎ ¡£¡£¡£¡£¡£¡£¡£¶àÄêÀ´ £¬£¬£¬£¬£¬LETOU¡¤(ÖйúÇø)ÓÐÏÞ¹«Ë¾¹ÙÍøÊ¼ÖճмÌÒÔÈËΪ±¾µÄÀíÄî £¬£¬£¬£¬£¬ÔÚ²úÆ·Á¦´òÔìÉÏ×ÖÕå¾ä×à £¬£¬£¬£¬£¬Óý³ÐĵÄÉè¼Æ¡¢Ï¸½ÚµÄ¿¼Á¿ £¬£¬£¬£¬£¬ÓªÔìÓÅÃÀµÄÈ˾ÓÇéÐÎ £¬£¬£¬£¬£¬ÕýÈçLETOU¡¤(ÖйúÇø)ÓÐÏÞ¹«Ë¾¹ÙÍø¶­Ê³¤ÁÖÖÐÖ¸³ö £¬£¬£¬£¬£¬¡°ºÃµÄÎÝ×ÓÒ»¶¨ÊÇÒÔ¡®ÈË¡¯ÎªÆðµãµÄ £¬£¬£¬£¬£¬LETOU¡¤(ÖйúÇø)ÓÐÏÞ¹«Ë¾¹ÙÍøÖÂÁ¦ÓÚ´ÓÈËÎľì×¢µÄ½Ç¶È˼Ë÷δÀ´È˾ÓÉúÑÄ¡± ¡£¡£¡£¡£¡£¡£¡£

Ç×°®µÄÓû§ £¬£¬£¬£¬£¬Îª°ü¹Ü×î¼Ñä¯ÀÀЧ¹û £¬£¬£¬£¬£¬ÍƼöÄúʹÓÃChrome¡¢Firefox¡¢Safari¡¢»òIE9ÒÔÉϰ汾µÄä¯ÀÀÆ÷ ¡£¡£¡£¡£¡£¡£¡£

ÈçÄúʹÓõÄÊÇIEä¯ÀÀÆ÷ £¬£¬£¬£¬£¬ÇëÈ·±£ÔÚä¯ÀÀÆ÷ÓÒÉϽÇÑ¡Ïî¡°¹¤¾ß¡ª¡ª¼æÈÝÐÔÊÓͼÉèÖá±ÖÐ £¬£¬£¬£¬£¬½«±¾ÍøÕ¾´Ó¡°ÒÑÌí¼Óµ½¼æÈÝÐÔÊÓͼÖеÄÍøÕ¾¡±Áбíɾ³ý £¬£¬£¬£¬£¬²¢×÷·ÏÑ¡Ôñ¡°ÔÚ¼æÈÝÐÔÊÓͼÖÐÏÔʾIntranetÕ¾µã¡± ¡£¡£¡£¡£¡£¡£¡£

¡¾ÍøÕ¾µØÍ¼¡¿¡¾sitemap¡¿